Bez wątpienia główną atrakcją domu jest otwarta kuchnia przechodząca w przestrzeń salonu. Poczucie komfortu zapewnia także doskonałe doświetlenie pomieszczeń – dzięki dużym oknom wychodzącym na dwie strony wydłuża się czas oświetlenia pokoju naturalnym światłem. Takie zaplanowanie salonu ułatwia także jego integrację z otaczającym ogrodem.
Standard domu Family
Pełny opis budowy i specyfikacja materiałowa.

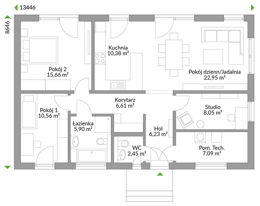
Rzuty
Kompletny plan wszystkich kondygnacji z metrażem






Dzięki temu, że wybraliśmy dom Danwood, zyskaliśmy czas dla rodziny. Nie musimy go spędzać na budowie, możemy się cieszyć naszym domem.