Oto największy dom z rodziny Family. Dom, który spełni Twoje wszystkie marzenia. Na parterze i poddaszu możliwe są trzy opcje rozkładu pomieszczeń, a ich wybór jest uzależniony jedynie od indywidualnych potrzeb Twojej rodziny.
Standard domu Family
Pełny opis budowy i specyfikacja materiałowa.

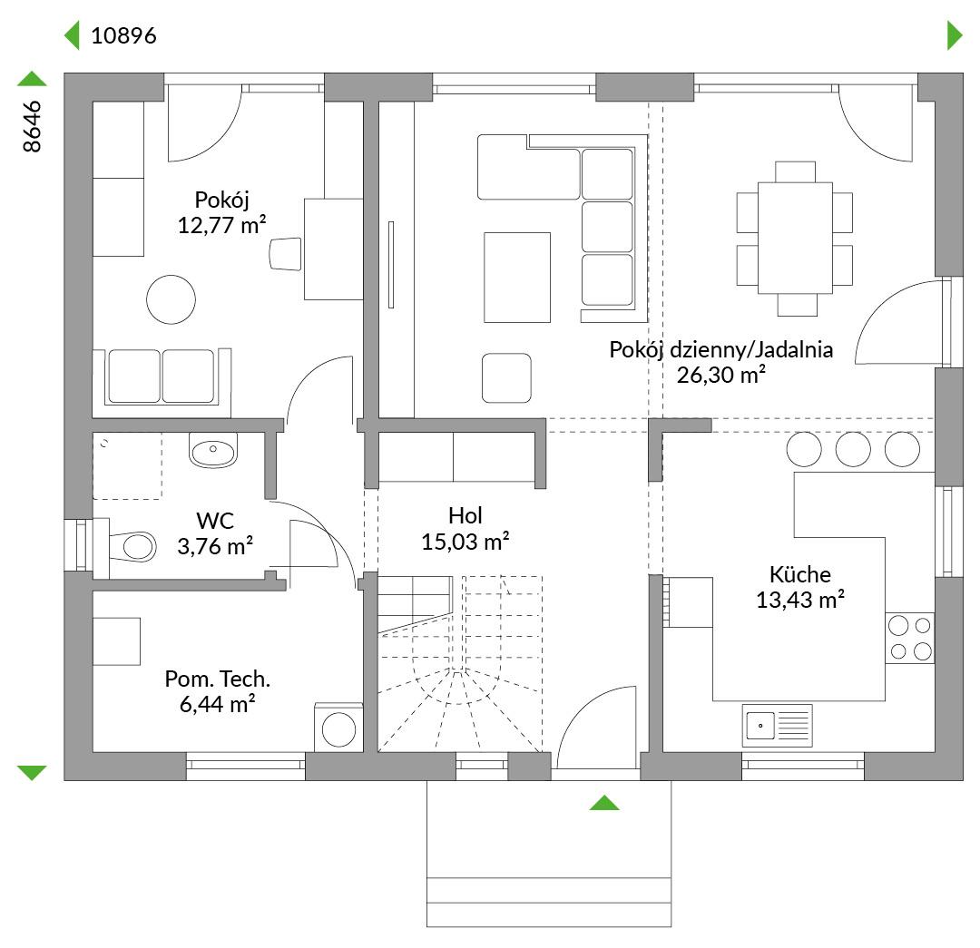
Rzuty
Kompletny plan wszystkich kondygnacji z metrażem






Dzięki temu, że wybraliśmy dom Danwood, zyskaliśmy czas dla rodziny. Nie musimy go spędzać na budowie, możemy się cieszyć naszym domem.